
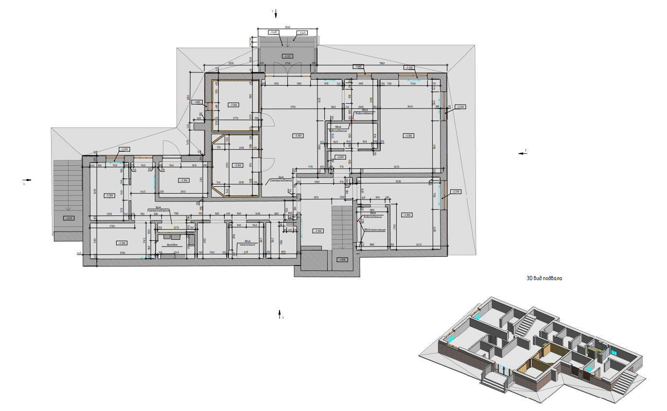
Задача: Произвести наземное лазерное сканирование внутри помещений и фасада здания для последующего создания 3D модели и обмерных чертежей
Площадь объекта
Количество точек сканирования
Времени на сканирование
Времени на сдачу готового проекта
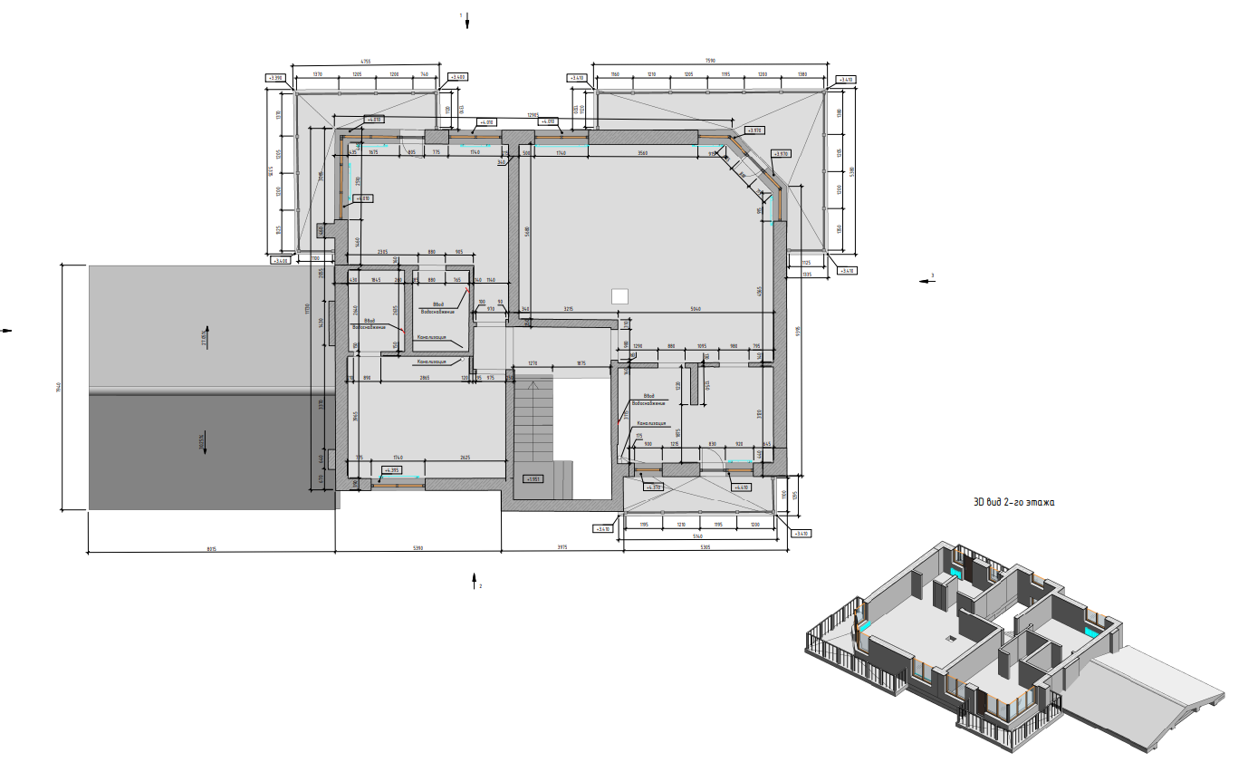
Задача: Произвести наземное лазерное сканирование внутри помещений и фасада здания для последующего создания 3D модели и обмерных чертежей



Площадь объекта
Количество точек сканирования
Времени на сканирование
Времени на сдачу готового проекта
Площадь объекта
Количество точек сканирования
Времени на сканирование
Времени на сдачу готового проекта
Нажмите на кнопку, оставьте свои контакты и мы вам перезвоним.
Отправьте свои контакты
и мы свяжемся с вами в ближайшее время
Наш телефон (WhatsApp / Telegram):
+7 (988) 149-87-77
Наш телефон (WhatsApp / Telegram / Max): +7 (988) 149-87-77
Наша миссия — создавать совершенно новый опыт для ваших клиентов, а также открыть целый спектр возможностей для работы с партнерами, подрядчиками и командой.
ИП Курячая Т.Е ИНН 741500112823 ОГРНИП 309741511200011
Все права защищены © 2019-2026 VReal Space
Все права защищены © 2019-2026 VReal Space
Наша миссия — создавать совершенно новый опыт для ваших клиентов, а также открыть целый спектр возможностей для работы с партнерами, подрядчиками и командой.
ИП Курячая Т.Е ИНН 741500112823 ОГРНИП 309741511200011
Все права защищены
© 2019-2026 VReal Space